
東京都目黒区の下町にデザインした小さな住まい / カタログカフェです。
大阪を拠点にするインターネットショップの東京拠点として計画しました。ショップで扱う商品のカタログを集めて、購入希望者が自由にそのカタログを閲覧したり、実物サンプルを確認したりできるような、そんな場所が求められました。また必要に応じて寝泊りすることも考慮したいとのこと。
奥行き深く天井の高い、包み込まれながら同時に開放的な空間
敷地間口は4M程、奥行きは10M弱、形は整形ですが、短冊のような細長い敷地です。この「うなぎの寝床」のような敷地に、壁全面に設えた巨大な本棚とゆったりとした高い天井に包まれ、その中にふわっと2階の床が浮いている、開放的な空間をデザインします。
幅2.8m、奥行き6.3m、天井高は4.3mから5.9mの片流れの奥行き深く天井の高い、包み込まれるようでありながら、同時に気持ちがすーっと開放的になるような気持ちの良い空間です。
視認性にすぐれ親しみやすい居心地の良い空間
誰でもが入りやすく、また視認性にすぐれ親しみやすい、また居心地の良い快適な空間をつくることを目指しました。
建主さんは、インターネット販売を広く展開されています。本拠地が大阪のため、東京拠点として、寝泊りができ、同時にネット販売しているもののカタログをお客さんたちに実際に手にとってもらう場所をつくりたいとのことでした。敷地は家具屋さんなどが多く集まる目黒通りから少し入った場所にあります。
建物は、シンプルな形状、無理の無い大きさ、雨仕舞のよさ等に配慮し、無駄の無いものを目指しました。1 階の床はコンクリートに塗装、2 階の床は合板のままとすることにし、必要であれば建主さん自身で変えていただいてもよいと考えました。
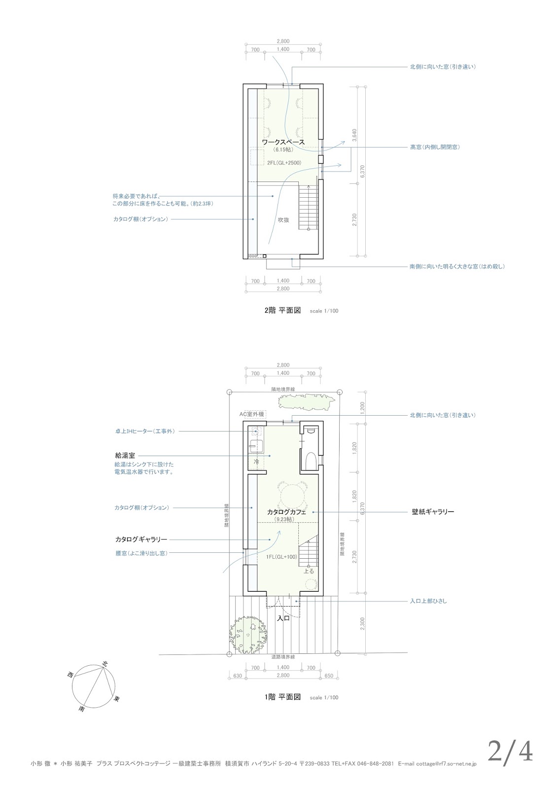
片流れの屋根がそのまま吹抜天井となり、それが奥行き方向に続く、シンプルで明るく心地の良い建物です。1 階はカタログギャラリーと壁紙ギャラリーからなる<カタログカフェ>、そして2 階にロフトのようなワークスペースを設けます。
奥行き方向の一方の壁全体を造作家具による本棚としています。高いところにある棚には梯子でアクセスします。長さは6.3m、高さは4.3mの巨大な本棚です。
1階の一番奥にコンパクトなキッチンとトイレを設けています。ここに宿泊するときには、近所の銭湯にいきたいという建主さんの希望で浴室は設けていません。
南側から明るい光が、北側からは穏やかな光が採りこまれます。風は、入口脇の小窓から東側の2つの高窓へ抜け、穏やかな自然換気を行います。吹抜部分には、将来床を張ることも可能です。
シンプルな構造でありながら、穏やかで、すがすがしい空間であり、同時に自由度が高く、拡張性のある建物となるよう計画しました。






